haleykong

INFO

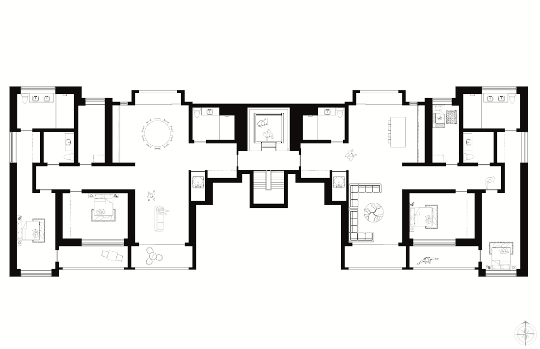
After visiting a tour of Shanghai’s 盘龙天地 and its surrounding apartment dwellings, I was inspired to come up with a design that spoke more towards the needs of the Modern Chinese family. With an open family room plan, coupled with an open kitchen layout, the ampleness of space allows for large family gatherings to reflect Chinese traditions and cultural habits.